02 Cavalier Ac Wiring Diagram

02 Cavalier Ac Wiring Diagram. AC also called alternating current is what typically powers a regular brick-and-mortar home. Electrical Wiring Diagrams For Air Conditioning Systems.

1998 Cavalier Headlight draw issue - GM Forum - Buick ...
1998 Cavalier Headlight draw issue - GM Forum - Buick ... (Cecilia Terry)
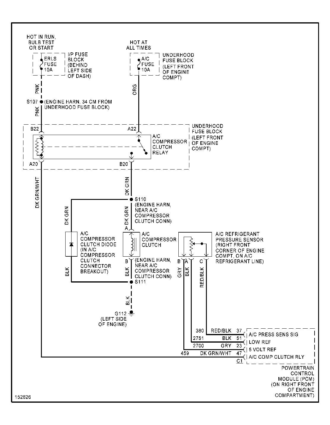
Cavalier Ac Wiring Diagram s have taken some time to evolve for their current form and dimensions and so provide the Cavalier Ac Wiring Diagram diagrams. An air conditioner is a system or a machine that treats air in a defined usually enclosed area via a ref. From the fuse it travels to two relays.

Cavalier Ac Wiring Diagram s have taken some time to evolve for their current form and dimensions and so provide the Cavalier Ac Wiring Diagram diagrams.

Ac Wiring Diagram Ford Blower Motor Diagram Heat.

2002 Cavalier AC Compressor Not Cycling: AC Question: I ...

1992 Chevy Cavalier Ignition Wiring: I Need to Rewire the ...

| Repair Guides | Engine Control Systems (2004) | Alt ...

2002 Cavalier. Head lights and wipers will not work. Fuses ...

2003 Chevrolet Cavalier Base 2DR Connector. Chassis ...

I need some major help. 98 Sunfire 2.2 Auto/AC My car is ...

1986 Chevrolet Cavalier 2.8L MFI OHV 6cyl | Repair Guides ...

Repair Guides

2003 Chevrolet Cavalier Base 2DR Connector. Chassis ...

Read Or Download Dodge Caravan Ac For FREE Wiring Diagram at AVIATIONDIAGRAMS. Choosing An Electric Fan Control By Jim Clark The Hot. Need Ac Wiring Diagram - Blazer Forum.

Subscribe to receive free email updates:

0 Response to "02 Cavalier Ac Wiring Diagram"

Posting Komentar